+49 89 457 109 70

Wir beraten Sie persönlich!

Elegantes Wohnen über zwei Etagen – Maisonette mit Kamin, TG-Stellplatz & Top-Ausstattung

4-Zimmerwohnung
zu Verkaufen
Auctiora-ID: 17606
Adresse
Abbachstraße, 80992 München, Moosach
990.000 €
Kaufpreis
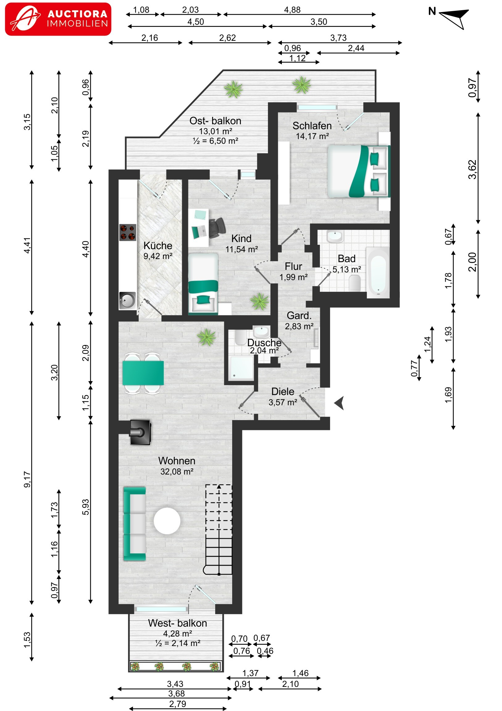
ca. 132,3 m²
Wohnfläche
4
Zimmer
Ausstattung
Personenaufzug
Helles Schlafzimmer
Lichtdurchflutete Räume
Einkaufsmöglichkeiten und Freizeitangebote
Offener Wohn- und Essbereich
Terrasse
ruhige Lage
lichtdurchflutete Räume
4-Zimmer-Wohnung
sonnige Balkon
Ruhige Straße
Separates Gäste-WC
4-Zimmer-WG
Top Lage
Geräumige Wohnung
Informationen
Verfügbar ab
Sofort
Wohnart
4-Zimmerwohnung
Etage
3
Etagenzahl
3
Befeuerungsart
Gas
Heizungsart
Zentralheizung
Zimmer
4,0
Schlafzimmer
3,0
Badezimmer
3,0
Baujahr
1982
Küche
Einbauküche
Fahrstuhl
Personenaufzug
Balkone
1
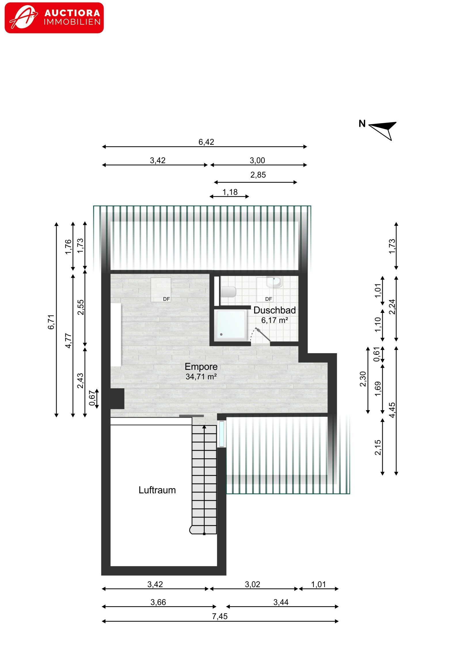
Terrassen
1
Garagen / Stellplätze
  • 1 × Tiefgaragenstellplatz
  • Flächen
    Wohnfläche
    ca. 132,3 m²
    Kosten
    Kaufpreis
    990.000 €
    Provision
    3.57 % inkl. gesetzl. MwSt.
    Hausgeld
    843 €
    Stellplatz
  • 29900 €
  • Grundriss
    mehr
    Objektbeschreibung

    Willkommen in einer außergewöhnlichen Maisonette-Wohnung, die stilvolle Eleganz, großzügiges Raumgefühl und hochwertige Ausstattung vereint. Auf ca. 132 m² Wohnfläche, verteilt auf zwei Ebenen, bietet diese besondere Immobilie vier Zimmer, darunter drei Schlafzimmer und drei moderne Bäder – ein ideales Zuhause für Familien oder Paare mit gehobenem Anspruch.

    Der lichtdurchflutete Wohnbereich mit stilvollem Kamin, die hochwertige Einbauküche und die durchdachte Raumaufteilung schaffen eine Wohnatmosphäre, die gleichermaßen funktional wie inspirierend ist. Hier genießen Sie urbanen Lebensstil auf hohem Niveau in einer ruhigen und gepflegten Umgebung.

    Ein besonderes Komfortmerkmal ist der Tiefgaragenstellplatz mit direktem Aufzugzugang, der zusätzlich für 29.900 € erworben werden kann. Ein separater Kellerraum bietet weiteren Stauraum. Die Wohnung wird über eine energieeffiziente Gas-Zentralheizung beheizt.

    Das monatliche Hausgeld beträgt 843 € und umfasst sämtliche laufenden Kosten für die Wohnung inklusive Stellplatz, Verwaltung und Rücklagenbildung – für sorgenfreies, planbares Wohnen ohne Überraschungen.

    Diese Immobilie bietet eine seltene Kombination aus Raum, Lage und Ausstattung – ein echtes Unikat auf dem Münchner Immobilienmarkt. Vereinbaren Sie jetzt einen Besichtigungstermin und überzeugen Sie sich selbst von dieser besonderen Maisonette-Wohnung.

    Lage

    Die Immobilie befindet sich in einem ruhigen und gewachsenen Wohnviertel im Münchner Stadtteil Moosach, einer der begehrten Lagen im Münchner Nordwesten. Die Umgebung zeichnet sich durch eine angenehme Mischung aus städtischem Komfort und naturnahem Wohnen aus. In unmittelbarer Nähe befinden sich zahlreiche Einkaufsmöglichkeiten, darunter Supermärkte, Apotheken, Bäckereien sowie das Einkaufszentrum OEZ (Olympia-Einkaufszentrum). Die Verkehrsanbindung ist hervorragend: Mit der nahegelegenen U-Bahn (Linie U3) sowie der S-Bahn (Linie S1) erreichen Sie die Münchner Innenstadt oder den Flughafen in kurzer Zeit. Zudem besteht ein schneller Anschluss an den Mittleren Ring sowie die Autobahnen A99 und A9. Für Familien besonders attraktiv sind die zahlreichen Schulen, Kindergärten und Spielplätze in der Umgebung. Darüber hinaus bietet der Stadtteil ein breites Freizeit- und Erholungsangebot – unter anderem den nahegelegenen Olympiapark, den Botanischen Garten und weitere Grünflächen, die zu Spaziergängen, Sport oder Entspannung einladen. Die Kombination aus urbaner Infrastruktur, guter Anbindung und hoher Wohnqualität macht diese Lage zu einem idealen Lebensmittelpunkt für Familien, Berufstätige und Ruhesuchende gleichermaßen.

    Karte
    Abbachstraße, 80992 München, Moosach

    Sie sehen gerade einen Platzhalterinhalt von Google Maps. Um auf den eigentlichen Inhalt zuzugreifen, klicken Sie auf die Schaltfläche unten. Bitte beachten Sie, dass dabei Daten an Drittanbieter weitergegeben werden.

    Mehr Informationen
    Energieausweis
    Baujahr
    1982
    Zustand
    gepflegt
    Energieausweis
    Verbrauchsausweis
    Energieausweis gültig bis
    keine Angaben
    Baujahr laut Energieausweis
    2007
    wesentlicher Energieträger
    Gas
    Energieeffizienzklasse
    Energieverbrauch
    109 kW
    Warmwasser enthalten?
    nein
    Sonstiges

    Der Vertragsabschluss mit unserem Maklerunternehmen erfolgt nach schriftlicher Bestätigung. Die Courtage beträgt 3,57% des Kaufpreises (inkl. MwSt.) und wird mit dem notariellen Kaufvertrag fällig. Änderungen des Steuersatzes führen zu einer Anpassung der Courtage. Grunderwerbsteuer, Notar- und Grundbuchkosten trägt der Käufer.
    Alle Angaben basieren auf den Informationen des Auftraggebers. Wir übernehmen keine Haftung für Vollständigkeit, Richtigkeit oder Aktualität der Daten. Ein Zwischenverkauf bleibt vorbehalten. Sollte das Objekt bereits bekannt sein, bitten wir um schnelle Mitteilung.
    Die Weitergabe des Exposés an Dritte ohne Zustimmung kann zu Courtage- oder Schadensersatzansprüchen führen. Unsere AGB sind gültig. Irrtümer und Zwischenverkauf sind vorbehalten.
    Bilder und Darstellungen sind Eigentum der Auctiora Immobilien GmbH und dürfen nicht ohne unsere Zustimmung weitergegeben werden.

    Für weitere Infos oder zur Besichtigung stehen wir gerne zur Verfügung.
    Ihr Auctiora Immobilien-Team
    AUCTIORA Immobilien GmbH
    Ihr Partner für Immobilien in München

    Telefon: 089 45710970
    E-Mail: info@auctiora.com
    Web: www.auctiora.com
    Adresse: Richard-Strauss-Straße 35, 81677 München, Bogenhausen

    Immobilienanfrage
     

    Online-Besichtigung

    Mit Auctiora haben Sie die Möglichkeit, Besichtigungen per Live-Video zu erleben. Erkunden Sie sicher von zu Hause aus die Immobilie und stellen Sie all Ihre Fragen wie gewohnt direkt an Ihren Kundenberater.

    Dieses Angebot teilen

    WhatsApp
    Facebook
    LinkedIn
    E-Mail